plano de prevenção e proteção de combate a incêndio
- Home
- Serviços
O serviço:
O Plano de Prevenção e Proteção Contra Incêndio (PPCI) é um documento exigido por legislação para garantir a segurança das edificações e ocupações contra incêndios e situações de pânico. Ele estabelece um conjunto de medidas técnicas e administrativas que visam prevenir e minimizar os riscos de incêndio, protegendo a vida humana e o patrimônio.
Objetivos do PPCI:
- Prevenção: Reduzir as chances de ocorrência de incêndios por meio de medidas adequadas, como instalação de sistemas elétricos seguros e controle de materiais inflamáveis.
- Proteção da Vida: Garantir que em caso de incêndio, as pessoas possam evacuar a edificação de forma segura e rápida.
- Combate ao Incêndio: Implementar meios eficazes para a detecção e controle das chamas, como extintores, hidrantes e sistemas de alarme.
- Facilidade de Acesso para Bombeiros: Prover condições adequadas para a atuação das equipes de emergência.
- Proteção do Patrimônio e Meio Ambiente: Minimizar prejuízos materiais e danos ambientais decorrentes de incêndios.
Elementos do PPCI:
O PPCI deve conter:
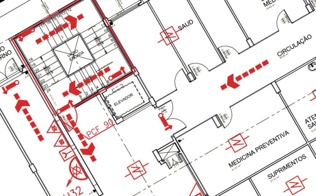
- Planta da Edificação com localização de saídas de emergência, extintores e hidrantes.
- Medidas Preventivas como sinalização, iluminação de emergência e materiais resistentes ao fogo.
- Treinamento e Simulados para os ocupantes do local sobre procedimentos de evacuação e uso de equipamentos de segurança.
- Brigada de Incêndio, quando necessário, composta por pessoas capacitadas para atuar em situações de emergência.
Normas e Aprovação do PPCI
Cada estado brasileiro tem legislação específica para o PPCI, geralmente fiscalizada pelo Corpo de Bombeiros Militar. Para obter a aprovação, é necessário apresentar o projeto ao órgão competente e realizar inspeção para emissão do Alvará de Prevenção Contra Incêndio (APPCI).